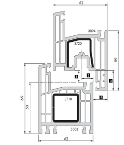
S-3000
Hay millones de ventanas del sistema S 3000 instaladas en el mundo. Han demostrado su calidad y relevancia. Debido a su camara especial y su diseño estos perfiles de ventana tienen un alto nivel tecnico. El valor R del perfil, la estabilidad y durabilidad de sus esquinas selladas son impresionantes. Como en sus otros sistemas de perfiles, GEALAN tiene un diseño conceptual del marco, que provee un facil cuidado durante su limpieza
Compatible con sistema de ventilación GECCO.










