S-9000
En estos momentos es el que desarrolla el mejor coeficiente de Conductividad Termal, con un perfil en el marco de 0,92 W/m2K. Excelente solución para su utilización en casas pasivas, y además ecológico: 0 contenido en plomo.
Puede descargar aquí el folleto comercial del sistema de S 9000 GEALAN.
Características
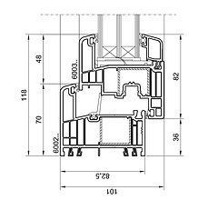
Este montaje de 82,5 mm asegura el mejor aislamiento térmico y acústico gracias a la incorporación de una tercera junta central flexible de sellado para satisfacer las más altas exigencias .
Dotado de una excelente rigidez gracias a grandes refuerzos de acero en el marco y la hoja lo hace el candidato perfecto para su instalación en casas pasivas.
Su gran profundidad de galce permite alojar los más modernos vidrios de protección contra el ruido y aislamiento térmico. Apto para doble cámara a 3 vidrios hasta un grosor de 54 mm y solape de 26 mm de altura.
Optimizado para la utilización de STV ®, con lo que se puede elegir fabricar la ventana sin refuerzo de acero (mayor ligereza manteniendo la rigidez) o bien con refuerzo, lo que permite la construcción de ventanas especialmente grandes y seguras.
Dispone de una amplia gama de productos complementarios como ampliaciones de marco, esquineros de 90º, acople esquina variable, acople estático y perfiles de unión interior. Compatible con sistemas de ventilación GECCO.
El uso eficiente del material en el diseño del perfil, ahorra recursos y por lo tanto ayuda al medio ambiente, convirtiendo al PVC en uno de los materiales con mayor capacidad de reciclaje. Disponible en una ámplia selección de colores y decoraciones de madera.











