S-8000 IQ
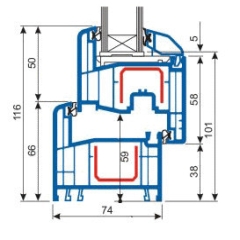
Los perfiles elegantes del S 8000 IQ tienen unas lineas clasicas pronunciadas y suaves contornos. Debido a la anchura de 74 mm. de su seccion, logran todos los requerimientos de proyectos de construccion donde se precisan grandes estructuras en ventanas de alta resistencia
Puede descargar aquí el folleto comercial del sistema de S 8000 IQ GEALAN.
Características
Este montaje de 74 mm asegura un excelente aislamiento térmico y acústico tanto en hoja como en marco mientras que su altura se reduce al máximo para dejar pasar mayor cantidad de luz .
Dotado de una excelente rigidez gracias a grandes refuerzos de acero en el marco y la hoja. Fácil de limpiar y compatible con los sistemas de ventilación patentados GECCO
Disponible tanto en perfil plano con junquillo biselado como rasante con junquillos redondos. Su gran profundidad de galce permite alojar los más modernos vidrios de protección contra el ruido y aislamiento térmico hasta un espesor de 44 mm.
Permeabilidad al aire hasta clase 4 (con GECCO), aislamiento acústico entre 34 y 47 db. dependiendo de la combinación de cristales, y protección contra robo hasta resistencia clase 2, dependiendo de la combinación de marco y hojas seleccionado.
El uso eficiente del material en el diseño del perfil, ahorra recursos y por lo tanto ayuda al medio ambiente, convirtiendo al PVC en uno de los materiales con mayor capacidad de reciclaje. Disponible en una ámplia selección de colores y decoraciones de madera.













